The area is characterized by terraced vineyards offering exceptional panoramic views from the Allaun Valley over the old towns of Stein and Krems, along the Danube to the Wachau region and Göttweig Abbey.
The local characteristics, combined with contemporary living culture, form the basis for this design.
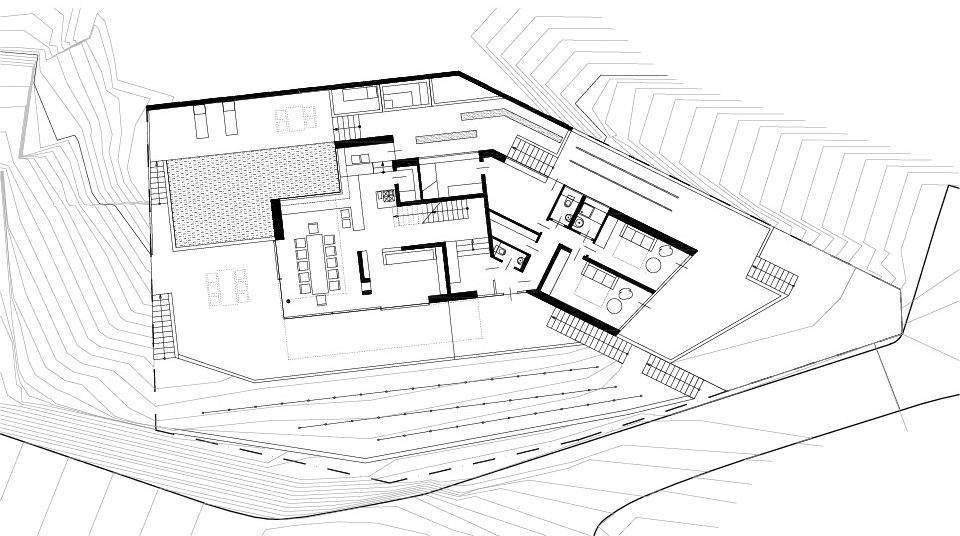
The house forms a terraced landscape with differently oriented and differentiated outdoor spaces. It is also divided into a base that follows the geometry of the existing dry stone walls and a towering, cantilevered “eagle’s nest.” Inside, the floor plan follows the terraced landscape. The area at the entrance level contains the guest and utility areas, which are independent of the private main use. A hallway leads to the living area. The dining room located there is two-story and connected to the terrace on the west side by a sliding door. The living room can be opened up generously to the south. A fireplace with glass on both sides connects the living and dining areas. An offset in the structure of the kitchen allows the dining area to enjoy the morning sun.
There is an additional exit to the herb garden or to a shaded area by the swimming pond.
The kitchen faces the swimming pond; the open floor plan ensures a view to the south over the Danube plain. The upper floor is for private use and is connected to the dining area by a gallery. The bedroom faces east with a large terrace in front, which is also accessible from the living room bathroom.
Invited competition 2007
2nd place
Client:
Private
Project team:
Reinhard Zeh
Main floor
Upper floor